スタッフブログ

Buddy House 西新町登場します(^▽^)

2019/02/15

皆さんこんにちは、大坪です♪

今回は物件紹介をしたいと思います !!

 

弊社では、買取をした戸建をリフォームして貸出す事業を行っております。

そして、今回門司区西新町に登場します!!

 

■住所:北九州市門司区西新町二丁目10番8号

■家賃:53,000円

■駐車場:普通車1台・軽1台

■敷金・礼金:0ヶ月

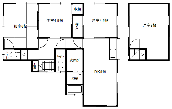
■間取り:4DK

☆現在、リフォーム中です!!2月下旬に完成予定です(^▽^)

☆間取りは4DKです!!庭もありますよ!!

 

現在はリフォーム中の為室内のお写真がありませんが、終わり次第掲載したいと思います♪

 

**おすすめポイント**

①ペット飼育可です(小型犬:家賃+1,000円・猫:家賃+2,000円)

②駐車場2台あります。無料です。

③陽当り、通風良好です。

④寝室にもトイレが付いています。便利です!!

⑤庭があります。ガーデニング、家庭菜園、バーベキューなどなど楽しめます(^^)v

⑥緑が多く閑静な住宅街。落ち着いた住環境です。

 

※弊社の売却専用HPです。こちらもご覧ください→https://buddy-baikyaku.com/